Bồn tự hoại Septic Toàn Mỹ 2000 lít là giải pháp thay thế cho các bể tự hoại bằng bê tông cốt thép đã lỗi thời. Không chỉ chứa chất thải, bồn Septic được thiết kế đặc biệt với chức năng lọc, ngăn chặn chất thải thô thoát ra ngoài, đảm bảo nước thải ra môi trường là nước thải loại B (An toàn với môi trường sống).
Bên cạnh đó, bồn tự hoại Septic Toàn Mỹ được làm từ vật liệu LLDPE (nhựa nguyên sinh) có tuổi thọ cao, chịu được axit, bazơ và có khả năng chống thấm cực cao, ngăn chặn hoàn toàn nguy cơ rò rỉ nước thải ra các mạch nước ngầm và bể chứa nước sạch,…

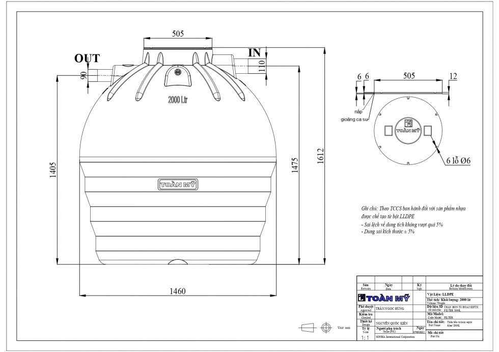
Bản vẽ bồn tự hoại septic Toàn Mỹ 2000 lít
Mục đích sử dụng của Bồn Tự Hoại Toàn Mỹ Septic 2000 lít:
Bồn Tự Hoại Toàn Mỹ Septic 2000 lít chỉ được sử dụng cho mục đích xử lý chất thải hữu cơ. Không được sử dụng Bồn tự hoại thông minh Septic vào mục đích khác khi chưa được sự đồng ý của nhà sản xuất. Bồn tự hoại Septic Toàn Mỹ 2000 lít là giải pháp thay thế cho các bể tự hoại bằng bê tông cốt thép đã lỗi thời. Sản phẩm giúp bảo vệ môi trường tốt nhất, không gây ôi nhiễm mạch nước ngầm như các bể tự hoại trước đây.
Nguyên lý hoạt động của Bồn Tự Hoại Toàn Mỹ Septic 2000 lít
Nước thải từ bể xí, bể tiểu của các khu vệ sinh (WC); được dẫn theo các đường ống thoát trong nhà hộ dân đưa vào bể phốt. Tại đây nước thải được xử lý sinh học yếm khí; cặn có trong nước thải được lên men lắng xuống đáy bể, nước được tách ra. Sản phẩm được bố trí đường ống dẫn từ bể phốt sang ngăn thu nước rửa theo nguyên lý chảy tràn do chênh lệch mực nước, nước được dẫn sang ngăn thu theo hướng từ dưới lên. Cặn bã trong bể tự hoạt sẽ được hút bể phốt theo định kỳ. Bồn Septic Toàn Mỹ được thiết kế đặc biệt với chức năng lọc, ngăn chặn chất thải thô thoát ra ngoài. Đảm bảo nước thải ra môi trường là nước thải loại B (An toàn với môi trường sống).
Những lưu ý khi sử dụng Bồn tự hoại thông minh Toàn Mỹ:
Để đảm bảo độ bền của sản phẩm, tránh tắc nghẽn bồn, Toàn Mỹ xin lưu ý với Khách hàng trong quá trình sử dụng như sau:
- Không vứt những vật dụng cứng xuống bồn cầu
- Không làm rơi các vật dụng sinh hoạt, thức ăn thừa, dầu mỡ xuống bồn cầu
- Hạn chế xả một lượng giấy quá nhiều khi đi vệ sinh khiến cho bể phốt nhanh đầy.
- Định kỳ thông hút bồn tự hoại Septic Toàn Mỹ sau mỗi 3-5 năm sử dụng.
Cấu tạo của Bồn Tự Hoại Toàn Mỹ Septic 2000 lít
- Thân bể
- Chi tiết cố định ống PVC
- Ống PVC
- Vị trí lỗ thông hơi (lắp đầu nối ren ngoài 1 inch)
- Nắp chụp đường ống ra
- Ống nước ra
- Bộ nắp bể
- Nắp chụp thông tắc
- Lẫy khóa nắp bể
- Vít inox 304
- Ngăn lọc trên
- Ống nước vào
- Ngăn lọc dưới
- Quả cầu lọc
- Ống hút xả
Quy trình lắp đặt bồn tự hoại septic Toàn Mỹ 2000L an toàn và hiệu quả
Bước 1: Đào hố chôn bồn - Đối với hố ngoài vườn: Đào đất sao cho khoảng không gian vừa cỡ bồn và xử lý nền để chắc chắn rằng không xảy ra sụt lún
- Đối với hố trong nhà: Hố cần được xây gạch xi măng cát vàng, nên xây loại tường 10cm
Bước 2: Cố định vị trí đặt bồn - Đối với trong nhà: Đặt bồn vào đúng vị trí, đổ nước vào bồn cho đầy đến mức ống nước ra để đảm bảo bồn không nổi lên hoặc bị bóp méo do áp lực của đất hoặc nước từ bên ngoài.
- Đối với ngoài vườn: Làm tương tự trong nhà và nối ống mềm (ống Flex) vào đầu vào, ra của bồn và gắn chặt bằng vòng đai.
Bước 3: Lấp kín xung quanh bồn - Đối với trong nhà: Đổ xi măng cát khô xung quanh thành bồn
- Đối với ngoài vườn: Đổ đầy xung quanh bằng đất mịn hoặc cát.
Bước 4: Lắp ráp nắp đậy - Đối với trong nhà: Đổ tấm đan bằng bê tông (khoét lỗ lớn hơn đường kính nắp bồn và lỗ thoát khí) đặt lên bể tránh lực tác động trực tiếp lên bồn nhựa.
- Đối với ngoài vườn: Lắp đặt bồn đặt cao hơn mặt đất.
Một số chú ý khi lắp đặt, bảo dưỡng bồn tự hoại Toàn Mỹ 2000L Septic
Trong quá trình sử dụng bồn tự hoại septic Toàn Mỹ 2000L có thể sẽ có xảy ra sự cố khác nhau như rò rỉ nước, bồn bị thủng, hay bị tắc nghẽn do cặn bẩn tích tụ trong đường ống nước. Để hạn chế những sự cố này xảy ra, người dùng cần thường xuyên kiểm tra, bảo trì, bảo dưỡng theo quy định của nhà sản xuất đảm bảo bồn nước vận hành tốt, tiết kiệm chi phí sửa chữa hay thay thế khi xảy ra sự cố như:
- Xử lý đáy hố tốt để tránh bị lún khi bồn đi vào sử dụng
- Không lắp đặt bồn ở dưới khu vực đi lại của xe tải hoặc phía dưới của thiết bị nặng, tránh khu vực có rễ cây to và đá
- Tránh lắp đặt bồn ở khu vực nước trũng
- Gia cố chống lún (như ép cọc) khi lắp đặt ở vùng nước trũng
- Tránh lắp đặt bồn ở khu vực đất sét ẩm
- Khi lắp đặt bồn, sau khi đặt đúng vị trí cần bơm đầy nước vào bồn để tránh bồn bị nổi, móp méo
- Không chèn đá, sỏi, vật liệu cứng xung quanh phần trống của bồn và hố.
Một số hình ảnh thực tế bồn tự hoại SEPTIC Toàn Mỹ
Toàn Phát tự hào là nhà phân phối bồn tự hoại Septic chính hãng của các thương hiệu uy tín như Tân Á Đại Thành, Sơn Hà, Toàn Mỹ. Chúng tôi cam kết:
- Chất lượng vượt trội: Sản phẩm chính hãng, được sản xuất theo tiêu chuẩn hiện đại, đảm bảo độ bền, khả năng chịu lực và chống thấm tuyệt đối.
- Mức giá cạnh tranh: Giá rẻ, hợp lý với nhiều ưu đãi hấp dẫn.
- Giao hàng miễn phí toàn quốc: Đảm bảo giao hàng nhanh chóng, tận nơi.
- Đa dạng dung tích: Phù hợp với mọi nhu cầu sử dụng từ gia đình đến công trình lớn.
Đến với Toàn Phát, bạn không chỉ nhận được sản phẩm chất lượng mà còn được phục vụ tận tình, chuyên nghiệp. Liên hệ ngay 0903 737277 để nhận tư vấn chi tiết và báo giá tốt nhất! ????
CÔNG TY TNHH KINH DOANH TOÀN PHÁT
NPP TÂN Á ĐẠI THÀNH - SƠN HÀ - HWATA - TOÀN MỸ
Tư Vấn Bán Hàng: 028.3710 9655 - 028.3710 9656 - 0903. 737277
Tổng kho TPHCM: 639 Nguyễn Thị Thử, Hóc Môn, TPHCM
Email: kdtoanphat@gmail.com . Website: bonnuoc.com
Hotline 24/7: 0909.913.212
Địa chỉ các chi nhánh:
- CN 1: 639 Nguyễn Thị Thử, Hóc Môn
- CN 2: Lý Thường Kiệt, Tân Bình
- CN 3: Hiệp Bình Chánh, Thủ Đức
- CN 4: Bình Hưng, Bình Chánh
- CN 5: Thủ Dầu Một, Bình Dương
- CN 6: Biên Hòa, Đồng Nai
- CN 7: Hòa Thành, Tây Ninh
- CN 8: Tân An, Long An
- CN 9: QL 60, Châu Thành, Bến Tre
- CN 10: QL 1A, Cai Lậy, Tiền Giang
- CN 11: Ba Láng, Cái Răng, Cần Thơ
- CN 12: Vành Đai 1, Cà Mau